DV 25-12 №671

Цена строительства от 4 235 000 ₽* * Стоимость не является окончательной
Заявка на консультацию
  • Общая площадь 77 м2
  • Длина 11 м
  • Ширина 7 м
  • Материал стен Газобетон/пеноблок
  • Количество этажей 1
  • Подвал Нет
  • Мансарда без мансарды
  • Гараж Нет
  • Терраса Нет
  • Проживание Круглогодичное
  • Количество комнат 3
  • Количество спален 2
  • Количество санузлов 1
  • Вид проекта дом
  • Застройщик Домастрой
  • Архитектурный стиль Классический
  • Отделка фасада Штукатурка
  • Крыша Вальмовая
  • Можно купить домокомплект Нет
  • Модульный тип строения Нет
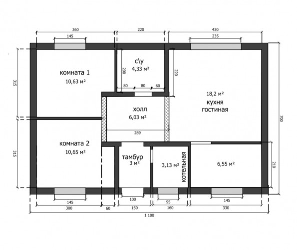
Планировки
Описание проекта

Этот дом станет идеальным местом для вашей семьи, где каждый найдет свое пространство, а общие зоны создадут атмосферу тепла и единства.

Две уютные комнаты (10,63 м² и 10,65 м²) — идеальны для детских или спален родителей. Здесь можно разместить кровати, рабочие столы и игровые уголки, обеспечив личное пространство для каждого члена семьи.

Большая кухня-гостиная (18,2 м²) — сердце дома, где можно собираться за семейными ужинами, принимать гостей или просто отдыхать вместе. Здесь найдется место и для кухонного гарнитура, и для мягкого дивана, и для обеденного стола.

Холл (6,03 м²) — удобная переходная зона, которая может служить небольшим коридором или местом для хранения вещей.

Тамбур (3 м²) — защитит от холода и сквозняков, а также станет местом для хранения обуви и верхней одежды.

Котельная (3,13м2) — обеспечит дом теплом и горячей водой, а помещение (6,55м2) можно использовать под небольшую комнату, кабинет или прачечную.

Почему здесь будет хорошо семье?

✔ Гармоничное зонирование — разделение на личные и общие зоны создает баланс между уединением и совместным времяпрепровождением.

✔ Удобная планировка — все необходимое под рукой, а компактные, но функциональные комнаты экономят время на уборку.

✔ Возможности для обустройства — в доме есть все, чтобы создать уютный интерьер, а свободные площади (например, холл или тамбур) можно адаптировать под нужды семьи.

Этот дом — не просто жилье, а место, где будут расти дети, собираться родные и создаваться семейные традиции. Здесь вашей семье будет по-настоящему комфортно и радостно!

Вас может заинтересовать
Вас может заинтересовать

Выбор местоположения

Задать вопрос / написать нам

E-mail: domgis@mail.ru

Мы свяжемся с Вами в течение дня.

Тех. поддержка
Предмет обращения:
Тукущая страница

Мы свяжемся с Вами в течение дня.

Обратный звонок
Обратный звонок
Выберите ваш город
Пожаловаться

Объявление опубликовано.
Изменения сохранены

Период публикации - бессрочный, при условии подтверждения актуальности каждые 50 дней. Уведомления будут отправляться на Вашу электронную почту.

Выберите причину снятия с публикации

Снятые с публикации объявления не участвуют в поиске и недоступны для подробного просмотра.

Для повторной публикации нажмите «Вернуть в публикацию»