Одноэтажный Барнхаус 131.2 м² №121

Цена строительства от 9 700 000 ₽* * Стоимость не является окончательной
Заявка на консультацию
  • Общая площадь 131 м2
  • Материал стен Каркас
  • Количество этажей 1
  • Подвал Нет
  • Мансарда без мансарды
  • Гараж Нет
  • Терраса Да
  • Проживание Круглогодичное
  • Количество комнат 5
  • Количество спален 3
  • Количество санузлов 2
  • Вид проекта дом
  • Застройщик НОРТХАУС
  • Архитектурный стиль Барнхаус
  • Отделка фасада Обшивка деревом
  • Крыша Двускатная
  • Можно купить домокомплект Нет
  • Модульный тип строения Нет
Планировки
Описание проекта

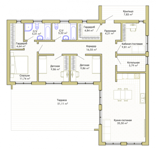
Представляем Вашему вниманию уникальный проект – угловой Барнхаус 131,2м2. Этот дом безусловно поразит своей архитектурой. Он сочетает в себе огромное пространство кухни-гостиной (больше 35м2), высокие 6-ти метровые потолки и множество удобных помещений для отдыха и хранения.

Общая площадь дома 131,2м2

Теплый контур 123м2

Кухня-гостиная – 1

Спальня – 3

Кабинет – 1

Гардеробная – 2

С/узел – 2

Котельная – 1

В стандартную комплектацию входит:

-переливной септик на 6м3.

-все инженерные коммуникации, включая теплый пол

-идеально ровный пол (п/сухая стяжка)

-идеально ровные стены (гипсокартон),

-фасад и кровля КЛИК ФАЛЬЦ + планкен (скрытый крепеж)

-5-ти камерные окна VЕКА с хорошей фурнитурой и мультифункциональным покрытием.

Ждем ваши заявки! С удовольствием воплотим вашу мечту в жизнь!

Вас может заинтересовать
Вас может заинтересовать

Выбор местоположения

Задать вопрос / написать нам

E-mail: domgis@mail.ru

Мы свяжемся с Вами в течение дня.

Тех. поддержка
Предмет обращения:
Тукущая страница

Мы свяжемся с Вами в течение дня.

Уведомление
Предмет обращения:
Тукущая страница
Обратный звонок
Обратный звонок
Выберите ваш город
Пожаловаться

Объявление опубликовано.
Изменения сохранены

Период публикации - бессрочный, при условии подтверждения актуальности каждые 50 дней. Уведомления будут отправляться на Вашу электронную почту.

Выберите причину снятия с публикации

Снятые с публикации объявления не участвуют в поиске и недоступны для подробного просмотра.

Для повторной публикации нажмите «Вернуть в публикацию»