Айленд №115

Цена строительства от 10 500 000 ₽* * Стоимость не является окончательной
Заявка на консультацию
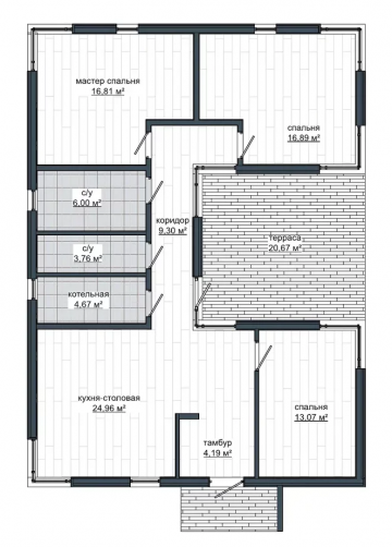
  • Общая площадь 100 м2
  • Материал стен Кирпич
  • Количество этажей 1
  • Подвал Нет
  • Мансарда без мансарды
  • Гараж Нет
  • Терраса Да
  • Проживание Круглогодичное
  • Количество комнат 4
  • Количество спален 3
  • Количество санузлов 2
  • Вид проекта дом
  • Застройщик БауАртЭстетика
  • Архитектурный стиль Хай-тек
  • Отделка фасада Лицевой кирпич
  • Крыша Мансардная
  • Можно купить домокомплект Нет
  • Модульный тип строения Нет
Планировки
Описание проекта

Наш проект представлен в лаконичном, функциональном и уютном "хай- тек" стиле с соблюдением правил композиции.

Три большие спальни с угловыми французскими окнами подарят роскошный, панорамный вид своим обитателям. Угловые большие окна отражают тренд современной архитектуры и обеспечивают лучшую инсоляцию жилья.

Большая кухня-гостиная станет для вас центром всех застолий и семейных празднеств. Потолки - от 3,5 до 4 м (в коньке) подарят больше пространства, объема и воздуха.

Рационально расположенная котельная вмещает всё техническое оснащение дома и оптимизирует использование общей площади.

Выбор местоположения

Задать вопрос / написать нам

E-mail: domgis@mail.ru

Мы свяжемся с Вами в течение дня.

Тех. поддержка
Предмет обращения:
Тукущая страница

Мы свяжемся с Вами в течение дня.

Уведомление
Предмет обращения:
Тукущая страница
Обратный звонок
Обратный звонок
Выберите ваш город
Пожаловаться

Объявление опубликовано.
Изменения сохранены

Период публикации - бессрочный, при условии подтверждения актуальности каждые 50 дней. Уведомления будут отправляться на Вашу электронную почту.

Выберите причину снятия с публикации

Снятые с публикации объявления не участвуют в поиске и недоступны для подробного просмотра.

Для повторной публикации нажмите «Вернуть в публикацию»